- Woonoppervlakte
- Circa 73 m²
- Perceeloppervlakte
- Circa 102 m²
- Bouwjaar
- Gebouwd in 1933
- Aantal kamers
- 4 kamers (2 slaapkamers)
Deze charmante, uitgebouwde eengezinswoning is goed onderhouden en beschikt over een zonnige achtertuin, daarnaast is de woning gelegen in een rustige en groene omgeving nabij park Overbos, winkelcentrum Wijkerbaan en het Willem Alexanderplanten.
Deze woning is de perfecte plek voor starters, jonge gezinnen of iedereen die op zoek is naar een fijne woonplek met alle voorzieningen binnen handbereik.
Bouwjaar: 1933
Woonoppervlak: 73 m²
Perceeloppervlak: 102 m²
Externe bergruimte: 5 m²
Inhoud: ca. 284 m³
Indeling:
Begane grond:
Entree met meterkast, lichte, royale woonkamer met aanbouw, moderne keuken voorzien van inbouwapparatuur, heerlijk ruime badkamer met toilet en inloopdouche, tevens geeft de aanbouw toegang tot de zonnige achtertuin gelegen op het zuidoosten met ruime vrijstaande stenen berging
Eerste verdieping:
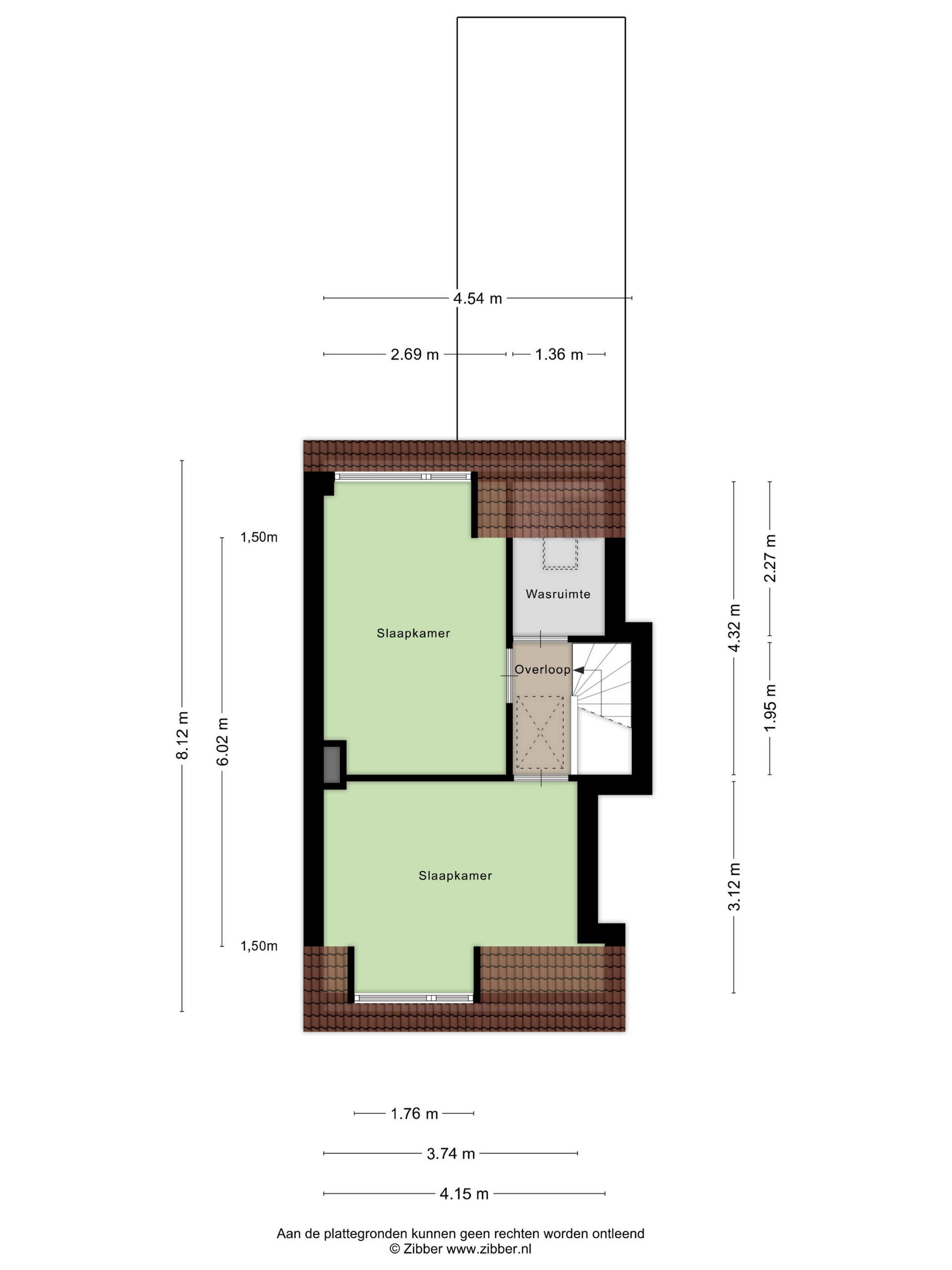
Op de eerste verdieping biedt de overloop toegang tot twee ruime slaapkamers met dakkapel. Daarnaast is er een kamer ingericht voor de wasmachine en droger, verder is er nog een handige bergvliering (te bereiken via vlizotrap) waar zich de CV-installatie bevindt
Kortom, een karakteristieke eindwoning die je zó kunt betrekken. Met veel lichtinval, hoogwaardige afwerking en gelegen op een fijne locatie in Beverwijk – dichtbij alle voorzieningen maar toch rustig. Een buitenkansje voor wie op zoek is naar een fijne woonplek met alle voorzieningen binnen handbereik.
Bijzonderheden:
- Instapklare eindwoning;
- Ruime stenen berging;
- Twee goed bemeten slaapkamers;
- Veel parkeermogelijkheden;
- CV-ketel: 2014 Remeha Tzerra;
- Nabij winkelcentrum Wijkerbaan;
- Direct gelegen aan park Overbos;
- Duinen en strand op fietsafstand;
Maak snel een afspraak voor een bezichtiging en ontdek de woonmogelijkheden op deze geweldige locatie!
Overdracht
- Vraagprijs
- € 349.000 k.k.
- Status
- Verkocht onder voorbehoud
- Aanvaarding
- In overleg
Bouw
- Object type
- Eengezinswoning, eindwoning
- Soort bouw
- Bestaande bouw
- Bouwjaar
- 1933
- Soort dak
- Zadeldak bedekt met pannen
Oppervlakte en inhoud
- Woonoppervlakte
- 73 m²
- Perceeloppervlakte
- 102 m²
- Inhoud
- 284 m³
- Overige inpandige ruimte
- 8 m²
- Externe bergruimte
- 5 m²
Indeling
- Aantal kamers
- 4 kamers (2 slaapkamers)
- Aantal badkamers
- 1 badkamer
- Badkamervoorzieningen
- Toilet, douche, wastafel, wastafelmeubel
- Aantal woonlagen
- 3 woonlagen
- Voorzieningen
- Tv-kabel, buitenzonwering, glasvezel kabel
Energie
- Energielabel
- G
- Energielabel registratie
- 23-01-2020
- Isolatie
- Dakisolatie, vloerisolatie, dubbel glas
- Verwarming
- Cv-ketel
- Warm water
- Cv-ketel
- Cv ketel
- Remeha tzerra combiketel gas gestookt uit 2014 (eigendom)
Buitenruimte
- Ligging
- Aan park, in woonwijk
- Tuin
- Achtertuin, voortuin
- Afmetingen achtertuin
- 56 m² (14 meter diep en 4 meter breed)
- ligging tuin
- Gelegen op het zuidoosten en bereikbaar via achterom
Bergruimte
- Schuur / berging
- Vrijstaand steen
- Voorzieningen
- Voorzien van elektra
Garage
- Soort garage
- Geen garage
Parkeergelegenheid
- Soort parkeergelegenheid
- Openbaar parkeren
Energieverbruik in Beverwijk
Energielabel deze woning
Energielabel G
Publicatie energielabel: 23-01-2020
Stroomverbruik per jaar
(Gemiddelde hoekwoning in Beverwijk)
Gasverbruik per jaar
(Gemiddelde hoekwoning in Beverwijk)
* Cijfers zijn afkomstig van het CBS en bedoeld als indicatie en kunnen verschillen voor deze woning
Indicatie hypotheeklasten
Eigen inleg:
Spaargeld / overwaarde
Rente:
Laagste 10-jaars rente
Laagste 10-jaars rente
2,85% - Centraal Beheer Groen... - NHG
3,08% - Centraal Beheer Groen... - 80%
Laagste 20-jaars rente
3,29% - Centraal Beheer Groen... - NHG
3,52% - Centraal Beheer Groen... - 80%
Laagste 30-jaars rente
3,41% - Centraal Beheer Groen... - NHG
3,74% - Centraal Beheer Groen... - 80%
Hypotheek:
Bruto maandlasten: € 0 p/m
Netto maandlasten: € 0 p/m
Hoe berekenen we dit?
Het rentepercentage is gebaseerd op de laagste 10 jaars vaste rente voor één hypotheekdeel. De vermelde rente (2.85% met NHG) is gecontroleerd op 27-01-2026. Deze berekening is gebaseerd op een annuïteitenhypotheek die volledig wordt afgelost, waarbij de maandlasten gedurende de gehele looptijd gelijk blijven. De werkelijke rente en netto maandlasten kunnen variëren, afhankelijk van uw persoonlijke situatie en de hypotheekverstrekker. Raadpleeg een financieel adviseur voor een nauwkeurige berekening en advies. Aan deze berekening kunnen geen rechten worden ontleend; het dient enkel als indicatie.
Documentatie
Kadastrale kaart
Leefomgeving
Plattegronden PDF
WOZ waarderapport
BAG uittreksel
Brochure
Lijst-van-zaken
Vragenlijst-deel-b
Bezoek onze website
Bezichtiging
Bod uitbrengen
Waardebepaling
Zoekopdracht
Alles downloaden
Zonnegrenzen bekijken
Op de kaart
Inwoners in Beverwijk
Cijfers voor postcodegebied 1945
- Totaal aantal inwoners
- 7005 inwoners
- Mannen
- 49%
- Vrouwen
- 51%
Inwoners in Beverwijk
Cijfers voor postcodegebied 1945
- tot 15 jaar
- 13%
- 15 tot 25 jaar
- 10%
- 25 tot 35 jaar
- 24%
- 45 tot 65 jaar
- 27%
- 65 en ouder
- 26%
Huishoudens in Beverwijk
Cijfers voor postcodegebied 1945
- Eenpersoons zonder kinderen
- 42%
- Meerpersoons zonder kinderen
- 28%
- Huishoudens zonder kinderen
- 70%
Huishoudens in Beverwijk
Cijfers voor postcodegebied 1945
- Huishoudens met één kind
- 9%
- Huishoudens met meerdere kinderen
- 21%
- Huishoudens met kinderen
- 30%
Woningen in Beverwijk
Cijfers voor postcodegebied 1945
- Woningen voor 1945
- 6%
- Woningen tussen 1945 en 1965
- 33%
- Woningen tussen 1965 en 1975
- 11%
- Woningen tussen 1975 en 1985
- 8%
- Woningen tussen 1985 en 1995
- 20%
Woningen in Beverwijk
Cijfers voor postcodegebied 1945
- Woningen tussen 1995 en 2005
- 4%
- Woningen tussen 2005 en 2015
- 12%
- Woningen na 2015
- 6%
- Huurwoningen
- 60%
- Koopwoningen
- 40%
Overige in Beverwijk
Cijfers voor postcodegebied 1945
- Gemiddelde WOZ waarde
- € 219.000,-
- Personen onder de 65 met uitkering
- 10%
Overige in Beverwijk
Cijfers voor postcodegebied 1945
- Adressen per km²
- 3522
- Stedelijkheid (schaal 1 op 5)
- 100%
Korte feiten over Beverwijk
Beverwijk (uitspraakⓘ) is een stad[2] en gemeente in Midden-Kennemerland[3] in de Nederlandse provincie Noord-Holland. De gemeente telt 42.866 inwoners (22 november 2024, bron: CBS) en heeft een oppervlakte van 19,60 km² (waarvan 1,78 km² water). De gemeente maakt deel uit van de samenwerkingsregio IJmond.
Bakker Makelaardij
Indien u vragen heeft of u wilt een bezichtiging inplannen, dan kunt u gebruik maken van het formulier hiernaast. Er zal daarna op korte termijn contact met u worden opgenomen.
Bootsmanszij 2
1941 JJ, Beverwijk
0251 - 291 129 info@bakkermakelaardij.nl www.bakkermakelaardij.comContact opnemen
Bakker Makelaardij
Bakker Advies presenteert een allesomvattend dienstenpakket!
Bakker Makelaardij, samen met Bakker Hypotheken, Bakker Administratie en onze verzekeringsexperts, zijn gebundeld op één locatie. Dit stelt klanten in staat om op één locatie een volledig advies te verkrijgen over verzekeringen, investeringen, hypotheken en assistentie in de vastgoedwereld, een enorm voordeel!
Ons team bij Bakker Makelaardij, onder leiding van de erkende NVM-makelaar Willem Bakker en zijn collega Lars van Roijen, is een krachtige combinatie van vakmensen. Wat houdt dit voor u in? Het garandeert dat elk aspect met precisie wordt afgehandeld. Of het nu gaat om bemiddeling bij aankoop, verkoop, huur of verhuur, grondige taxaties of deskundig advies over de sterke en zwakke punten van een eigendom. Onze klanten blijven het middelpunt; zij bepalen de criteria en stellen de kaders.
Nieuwste reviews
-
Reguliersstraat 56
Bij Bakker Makelaardij door Lars geholpen. Het ging allemaal heel duidelijk en makkelijk. Lars weet waar hij over praat en neemt heel veel u...
-
Westertuinen 2 A
Het contact met de makelaar verliep heel erg goed. Ze stonden altijd klaar voor ons en hielpen ons met alles wat je je maar kan bedenken. Te...
-
Koningstraat 180
Ik ging kijken bij een appartement en wist van te voren al dat ik het wilde. Lars van Bakker Makelaardij begreep precies hoe ik erin stond....